Home Past Projects Building A Home Bathrooms, Bedrooms & Kitchens Contact Details

Client Commissioned


Work Undertaken:-


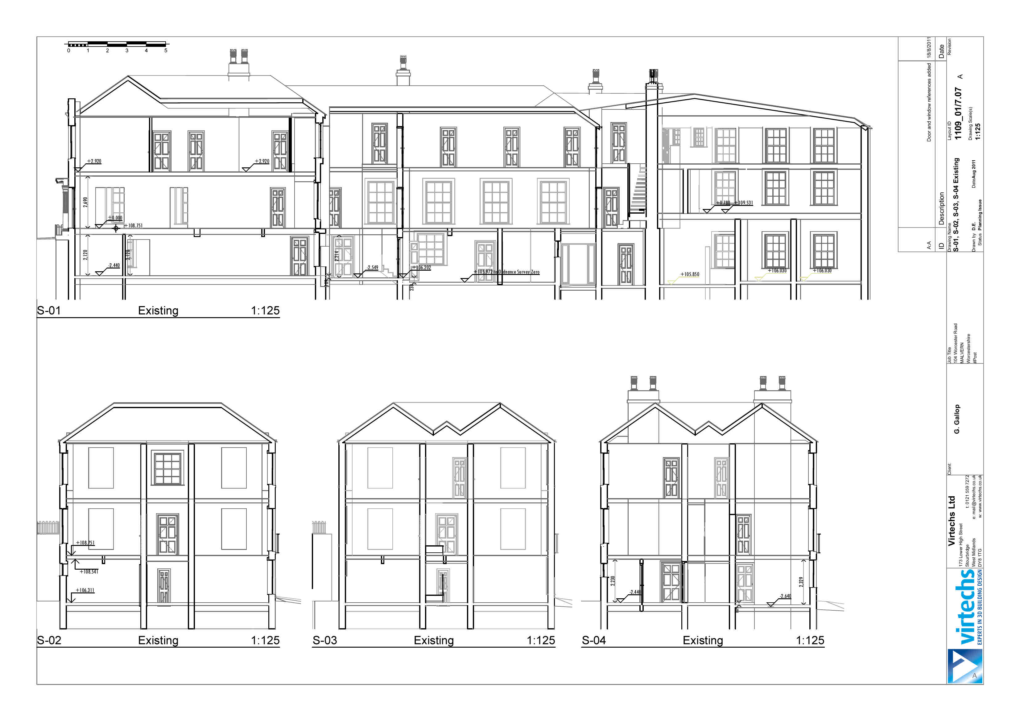
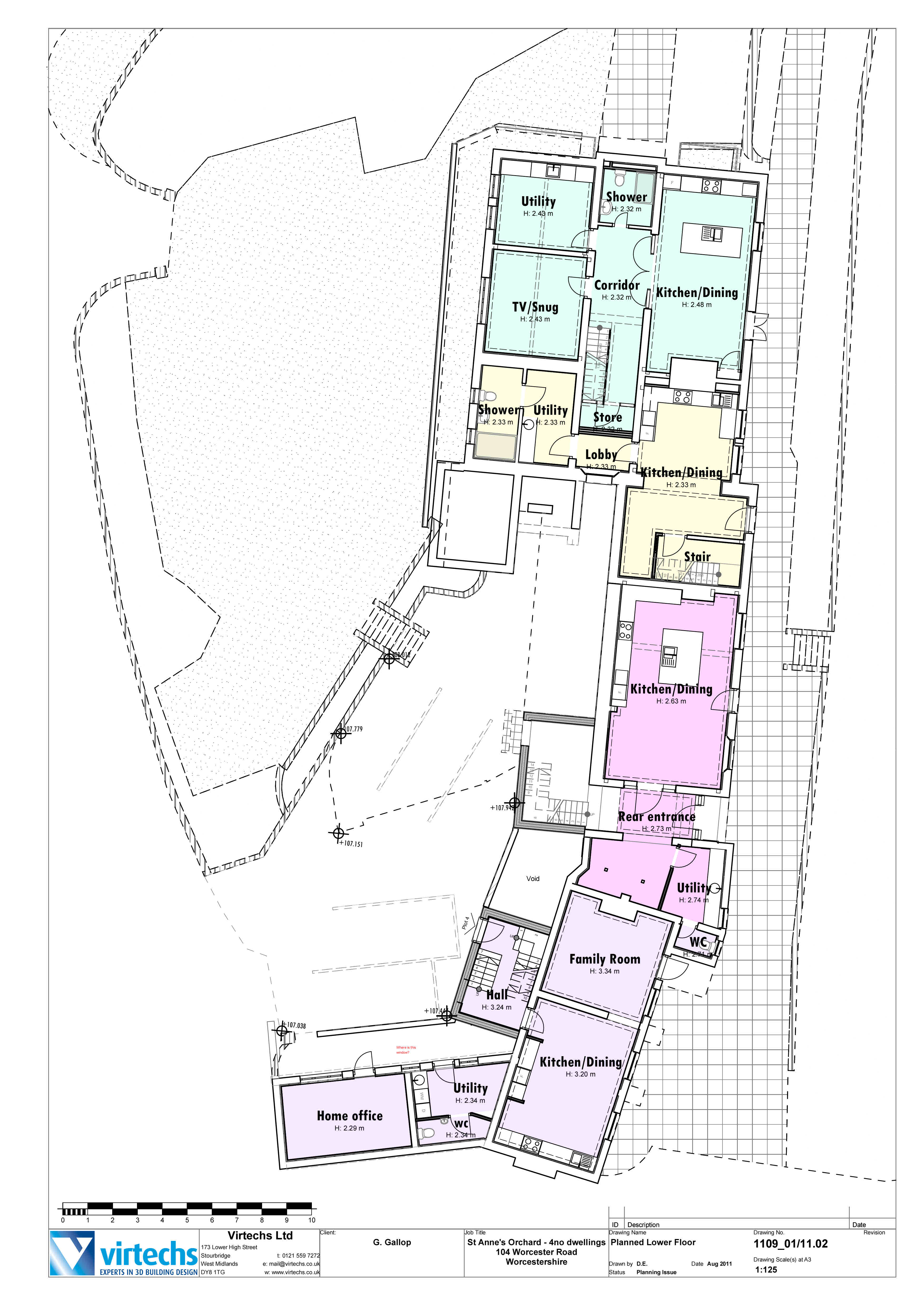
Conversion from Nursing home to Residential Houses with

Full Planning Approval on a grade 2 listed building in a conservation area,

Consultation on Alterations & Construction Design with Interior Design & 3D Modelling

Developed & Built by others.


1109_01_8.06  - DEMOLITION Elevations [2 of 2].jpg 1109_01_7.07 A - Existing Sections [1 of 3].jpg 1109_01_10.06  - NEW WORK Elevations [2 of 2].jpg 1109_01_10.07  - NEW WORK Sections [1 of 3].jpg 1109_01_11.02  - PLANNED Lower Floor.jpg