Home Past Projects Building A Home Bathrooms, Bedrooms & Kitchens Contact Details
Drew Road




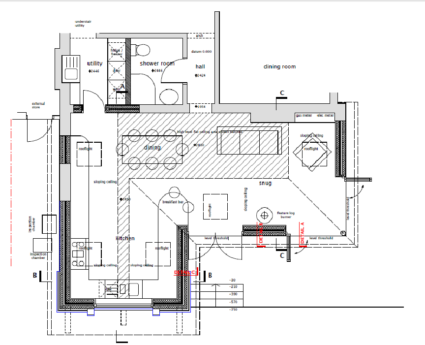
Carlton has completed a new single story open plan lounge and kitchen extension with Utility and Shower room to a property in the Pedmore area. The extension includes a vaulted ceiling with roof lights, Bi Fold & Double doors, a luxury Aristocraft kitchen and contemporary designer log burner. All cocooned in a state of the art exterior.





Client Commissioned


Work Undertaken:-


Assisted with Extension

 Concept & Design,

Building Regs. Specification

Application & Approval,

Construction of Buildings &

Full Project Management &

 Build Program.

In association with Mark Griffiths

 of MAG Architecture.