The Drift, Roweney Green
Kings Barn, Churchill
Station Road, Blackwell
Blakeman House, Blackwell
Hampton Park Road, Heroford
Woodland Avenue, Hagley
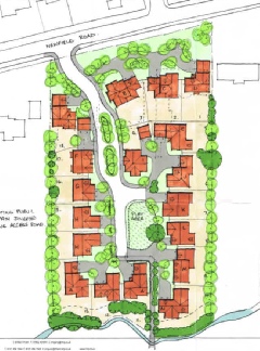
Newfeild Road, Hagley
St Ann's Orchard, Malvern
Coaley, Stroud
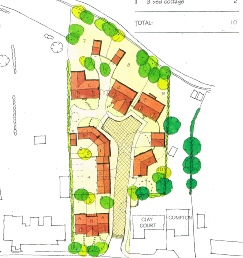
Quarry Park Road, Pedmore
Holy Cross, Clent
Lickey End, Bromsgrove
Malbrook, Bromsgrove
Beacon Hill, Rubery
South Gardens, Hagley
Orchard House, Ombersley
South Road, Hagley
Upperwelland Rd, Malvernwells
Primrose Crescent, Worcester
Drew Road
Lyttelton Place