Home Past Projects Building A Home Bathrooms, Bedrooms & Kitchens Contact Details

Client Commissioned


Work Undertaken:-


House Concept & Detailed Design,

Full Planning Approval,

Building Regs. Specification

Application & Approval,

Construction of Buildings &

Full Project Management &

 Build Program,









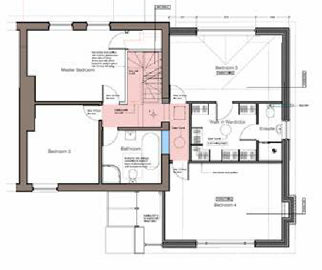
Carlton is in the process of completing a new two story extension and porch to a property in the Hagley area. The extension has added two new bedrooms, walk in wardrobe, en-suite , a second reception room, dinning room and laundry.